| 一、概述 |
GDKO3型电控箱有监控及全自动两种,它适用于40MPa双线终端式干油集中润滑系统中,用于控制润滑泵、换向阀、补脂泵等相互间协调工作,能对系统中的供油点实现自动供油,供油完成后,自动停止。油箱中液位低于一定限度时,补脂泵自动启动,注满油后,自动停止。
本控制箱能发出“供油时间延长”、“贮油筒空”、“超负荷运转”等故障信号。具有持续,手动和自动多种控制工作状态,可通过箱面上的转换开关来切换。持续工作状态:当润滑泵启动后持续地向系统两条主管线供送润滑脂;手动工作状态:当与主机联锁信号接通后,手动启动润滑泵运转向系统供送润滑脂,自动换向完成一个润滑周期供脂后自动停止;自动工作状态:当与主机联锁信号接通后,润滑泵按系统设定的时间间隔定时向系统供送润滑脂,完成一个润滑周期后自动停止。润滑泵不管在何种状态,一旦贮油筒空,补脂泵就会自动启动补脂,补满后自动停止。
|
|
|
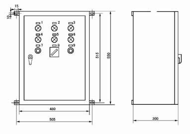
| 二、外形尺寸 |
|
| 三、标牌符号及文字 |
序号 |
符号 |
标牌文字 |
序号 |
符号 |
标牌文字 |
序号 |
符号 |
标牌文字 |
1 |
HL1 |
工作准备指示 |
6 |
HL6 |
系统超压 |
11 |
SB4 |
加油泵启动 |
2 |
HL2 |
线I工作状态 |
7 |
HL7 |
泵马达过载 |
12 |
SB5 |
加油泵停止 |
3 |
HL3 |
线II工作状态 |
8 |
HL8 |
贮油筒空 |
13 |
SB3 |
故障复位 |
4 |
HL4 |
加油泵工作 |
9 |
SB1 |
润滑泵启动 |
14 |
SA1 |
自动/手动/持续 |
5 |
HL5 |
监控时间超过 |
10 |
SB2 |
润滑泵停止 |
15 |
SA2 |
关/电铃/开 |
|
| 四、GDK-03电气控制箱外部接线图 |
|
五、使用说明
1、适用主电源AC380V、50HZ。
2、适用环境温度-10℃~40℃,湿度90%。
3、周围环境无导电的介质(气体、液体)。
4、垂直安装,其倾斜度不大于5°。 |